Ο Δήμος Λαρισαίων προκηρύσσει Συνοπτικό Διαγωνισμό με σφραγισμένες προσφορές, για την ανάδειξη προμηθευτή για την «ΠΡΟΜΗΘΕΙΑ – ΤΟΠΟΘΕΤΗΣΗ ΧΩΡΩΝ ΕΛΑΦΡΙΑΣ ΛΥΟΜΕΝΗΣ ΠΡΟΚΑΤΑΣΚΕΥΗΣ ΣΤΗ Δ.Ε. ΓΙΑΝΝΟΥΛΗΣ», με κριτήριο κατακύρωσης την πλέον συμφέρουσα από οικονομική άποψη προσφορά μόνο βάσει τιμής (χαμηλότερη συνολική τιμή), σύμφωνα με τις διατάξεις των άρθρων 117 του Ν. 4412/2016.
Για την περίληψη της διακήρυξης, πατήστε ΕΔΩ
Για το κείμενο της διακήρυξης, πατήστε ΕΔΩ
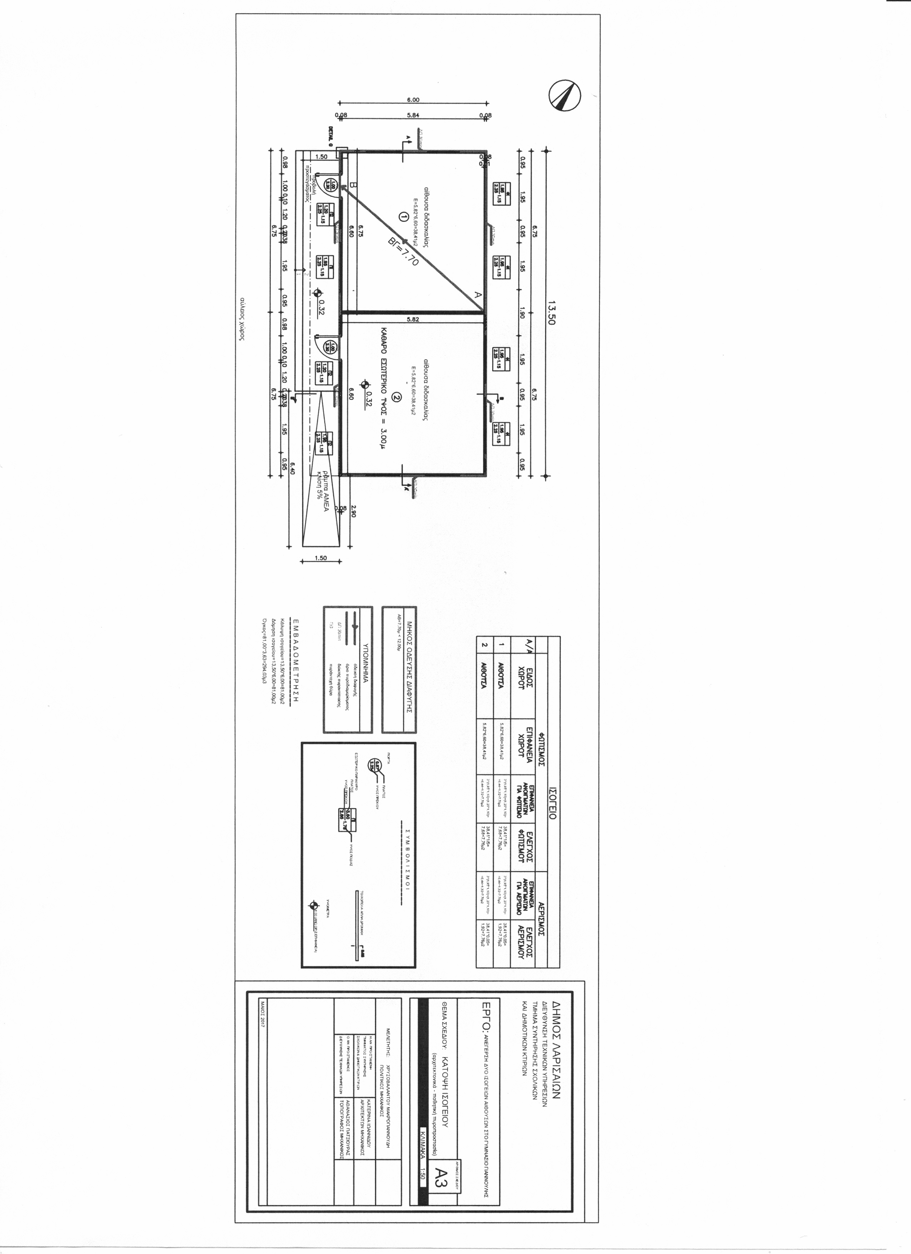
Για την τεχνική έκθεση, πατήστε ΕΔΩ
Για τις τεχνικές προδιαγραφές, πατήστε ΕΔΩ
Για τον προϋπολογισμό της προμήθειας, πατήστε ΕΔΩ
Για το έντυπο της οικονομικής προσφοράς, πατήστε ΕΔΩ
Για το τυποποιημένο έντυπο υπεύθυνης δήλωσης (ΤΕΥΔ), πατήστε ΕΔΩ
