Στο τελικό στάδιο βρίσκεται η διαμόρφωση περιφραγμένων πάρκων σκύλων στην πόλη μας, εξασφαλίζοντας έτσι ασφαλείς και σύγχρονους χώρους για την καθημερινή τους άσκηση. Πρόκειται για δύο διαφορετικούς χώρους στο χώρο του Πηνειού που θα εξυπηρετούν ο ένας κουτάβια και ο άλλος τα υπόλοιπα σκυλιά (μικρόσωμα-μεγαλόσωμα).
Το έργο πραγματοποιείται στο πλαίσιο της γενικότερης παρέμβασης για την ανάπλαση και αναμόρφωση του Πηνειού και περιλαμβάνει:
- Έναν περιφραγμένο χώρο, σύμφωνα με τις ισχύουσες διατάξεις, χώρο για κουτάβια
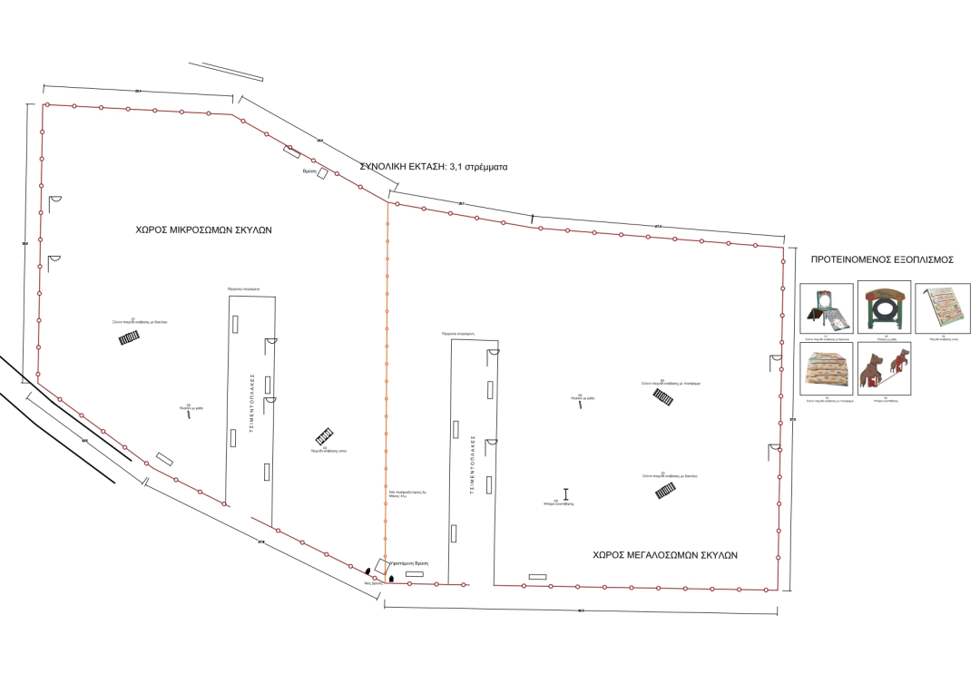
- Ένα διαμορφωμένο χώρο, έκτασης 3 περίπου στρεμμάτων για τα υπόλοιπα σκυλιά.
Στους χώρους, που θα είναι περιφραγμένοι και θα πληρούν όλες τις προϋποθέσεις και τους κανόνες της υγιεινής θα τοποθετηθούν βρύσες, παγκάκια για τους συνοδούς και 21 ειδικά παιχνίδια για τους τετράποδους φίλους μας. Είναι το πρώτο οργανωμένο Πάρκο Σκύλων στη Θεσσαλία και αναμένεται να παραδοθεί για χρήση το μέχρι το τέλος του χρόνου.
Την ίδια στιγμή στη φάση της ολοκλήρωσης βρίσκεται και ο χώρος προαυλισμού των σκύλων στο δημοτικό κυνοκομείο. Πρόκειται για ένα διαμορφωμένο χώρο περίπου 2 στρεμμάτων, που αποτελείται από δύο μέρη, ένα για τα μεγαλόσωμα σκυλιά και ένα για τα μικρόσωμα. Περιλαμβάνει την περίφραξη, τις προβλεπόμενες πόρτες, διαδρόμους με κυβόλιθους, βρύσες, παγκάκια και παιχνίδια.
Ο σκοπός της κατασκευής του είναι να δοθεί η δυνατότητα προαυλισμού των ζώων του κυνοκομείου με τη συνοδεία εθελοντών, σε έναν ασφαλή χώρο. Η ολοκλήρωση της κατασκευής του είναι προγραμματισμένη για το τέλος του μήνα, εκπληρώνοντας με αυτόν τον τρόπο και ένα αίτημα των φιλοζωικών σωματείων της πόλης μας.
«Μια πόλη σύγχρονη, οφείλει να προβλέπει τα αυτονόητα για τα ζώα συντροφιάς και τους ιδιοκτήτες τους. Η ολοκλήρωση αυτών των έργων, δημιουργεί χώρους ασφαλείς, σύγχρονους, μοντέρνους, για τη βόλτα και το παιχνίδι των σκύλων, σύμφωνα με τα όσα προβλέπει η νομοθεσία και απαιτεί η πραγματικότητα. Η Λάρισα αποκτά το πρώτο στη Θεσσαλία, πάρκο σκύλων και μέσα στο επόμενο διάστημα θα είναι έτοιμο προς χρήση από τους συμπολίτες μας. Ταυτόχρονα γίνεται πραγματικότητα ο χώρος προαυλισμού των σκύλων που φιλοξενούνται στο κυνοκομείο, κάτι που ήταν απαραίτητο για την ευζωία των τετράποδων φίλων μας. Η Λάρισα κάνει ένα ακόμα βήμα μπροστά», τονίζει σε σύντομη δήλωσή του ο Δήμαρχος Λαρισαίων, κ.Θανάσης Μαμάκος.




